Мы используем куки-файлы. Соглашение об использовании
Только на Циан

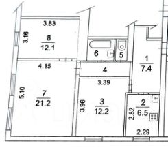
Продается 3-комн. квартира, 66,3 м²

Свободная продажа квартиры

Общая площадь66,3 м²
Жилая площадь45,5 м²
Площадь кухни6,5 м²
Этаж1 из 3
Год постройки1951
Продается просторная трехкомнатная квартира в кирпичном доме с высокими потолками высотой 3 м. Квартира с ремонтом, мебелью и всей необходимой техникой. Удобная и функциональная планировка - изолированные две комнаты, гостиная и кухня. Просторный коридор, в котором разместился вместительный встроенный шкаф. Санузел раздельный. Окна выходят в тихий закрытый двор без машин и на внешнюю сторону, где нет проезжей части. Рядом с домом есть детские и спортивные площадки. Развитая инфраструктура: школа, детский сад, поликлиника, магазины, пункты доставки, кофейни. Один взрослый собственник.
Позвоните автору
Вам ответят на все вопросы

О квартире

Тип жилья

Вторичка

Общая площадь

66,3 м²

Жилая площадь

45,5 м²

Площадь кухни

6,5 м²

Высота потолков

3 м

Санузел

1 раздельный

Ремонт

Косметический

О доме

Год постройки

1951

Тип дома

Кирпичный

Тип перекрытий

Железобетонные

Подъезды

3

Парковка

Наземная

Отопление

Центральное

Аварийность

Нет

Газоснабжение

Центральное

Спросите умного помощника
Получите экспертное мнение о жилье

Расположение

Ипотечный калькулятор
  • Базовая
  • Семейная
  • ИТ-ипотека
  • 20%
  • 30%
  • 40%
  • 50%
лет
  • 10 лет
  • 20 лет
  • 30 лет
Загружаем предложения от застройщика и банков
Агентство недвижимости
Документы проверены
7 990 000 ₽
Эксперт от ЦианаПомощь с поиском и гарантия безопасной сделки
Цена за метр
120 513 ₽/м²
Условия сделки
свободная продажа
Ипотека
возможна
Агентство недвижимости
Документы проверены
На Циан
9 лет
Объектов в работе
11